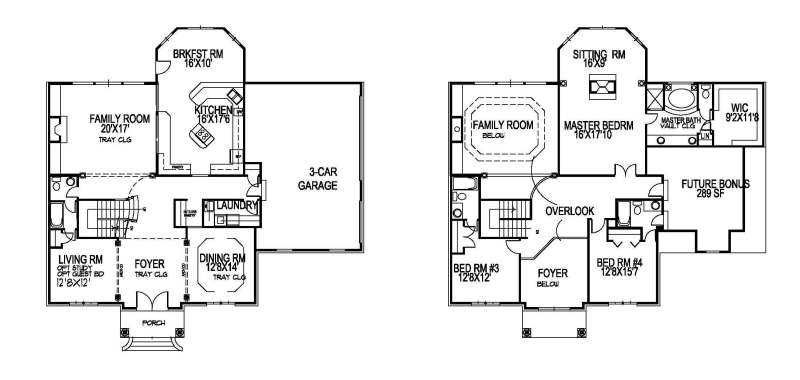
Bedrooms:4/Bath:3.5
Main Level:1394 sf/Upper Level:1879 sf
Total Living Area: 3219 sf
Width:44 feet/Depth: 63 feet
Planning Sets: $250, 5 Construction sets-$1000; 8 Construction sets-$1050; PDF/REPRO-$1100; CAD-$1200
Questions about this plan? Email us at boyeakin@aol.com.
ORDER PLANS BY CLICKING "ADD TO SHOPPING CART"
