Featured Plans
Featured Plans

European Plans-Master Down 1500 to 2999 sf

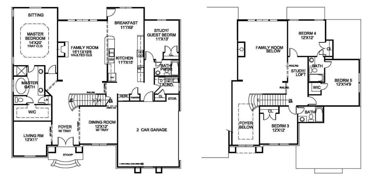
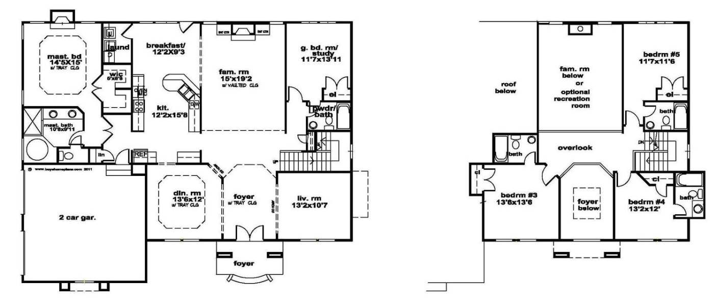
To see enlarged floor plan and elevation, CLICK "Display more" and click picture of houses and floor plan for larger view. Prices are subject to change. Questions?  Please call us at 1-855-811-2039 or email us at customerservice@boyehomeplans.com. 

To ORDER your houseplans, please call us at 1-855-811-2039 or email customerservice@boyehomeplans.com. 

PLAN SEARCH

TYPE name of house plan you are searching for in the "Free Text Search" box or

SELECT house plans by clicking on "Detailed Search" boxes below

Questions?  Please call us at 1-855-811-2039 or email us at customerservice@boyehomeplans.com.



PLAN SEARCH QUICK LINKS

houzz interior design ideas

Best of Houzz 2013 - Design
Your portfolio was voted most popular by the Houzz community.

ASK ARCHITECT BOYE

Award Winning Architect BoyeHow may I serve you?

 

CALL ME AT 855-811-2039!

 

Winner: 2004 Atlanta Street of Dreams-Best House Design & Winner: Best of Houzz Design Portfolio-2013

SIGN UP FOR OUR AWESOME NEWSLETTER

Click "Today's New Home Plans Newsletter" to read our latest newsletter with custom home design plans and trends for 2014!

HOW MAY WE HELP YOU? QUESTIONS? Please call

1-855-811-2039 or

e-mail to:

customerservice@boyehomeplans.com

Print | Sitemap
© Boye Architecture, Inc.

This website was created using IONOS MyWebsite.