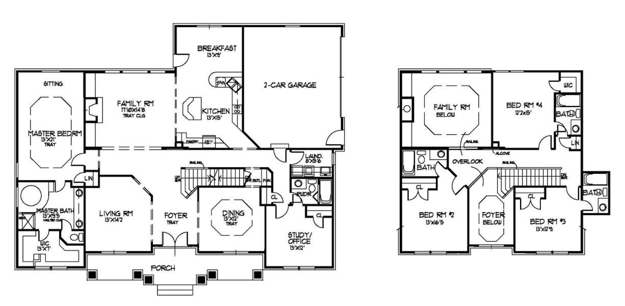
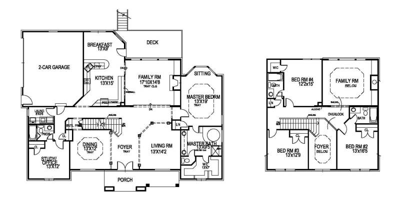
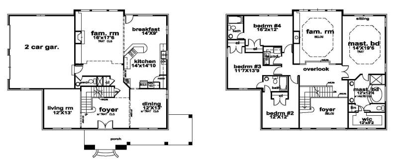
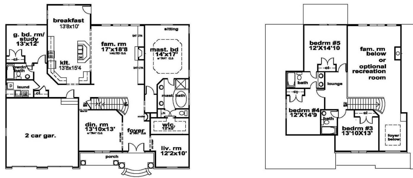
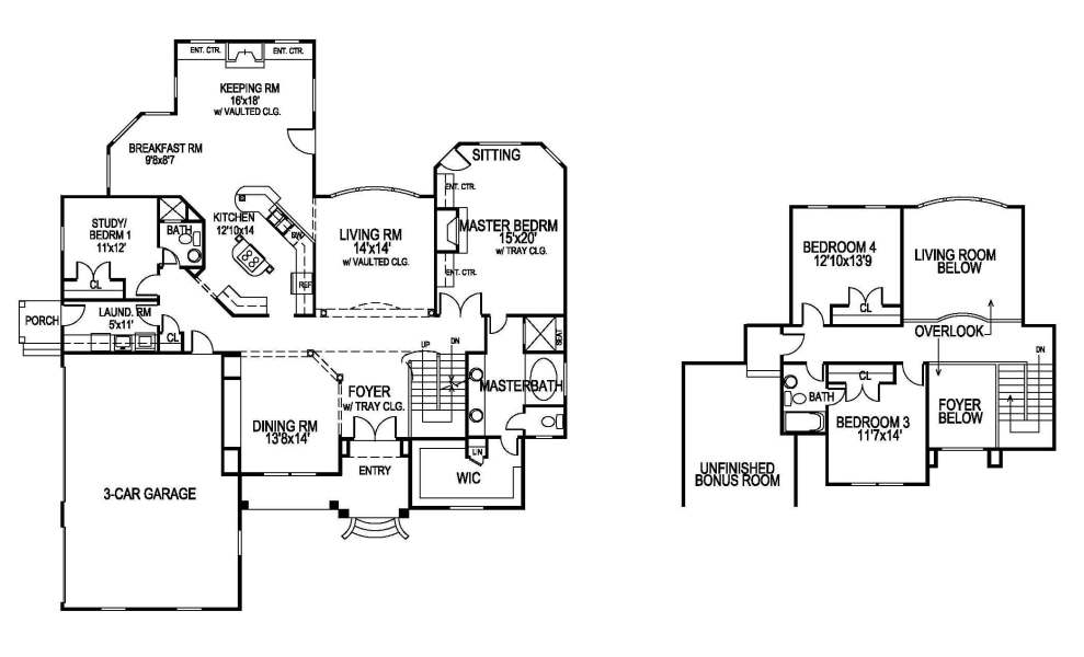
BECCA PLAN-DH 539
Bedrooms:5/Bath:4
Main Level:2186 sf/Upper Level:918 sf
Total Living Area: 3104 sf
Width:66 feet/Depth: 51 feet
Planning Sets: $250,5Construction sets-$1000; 8
Construction sets-$1050; PDF/REPRO-$1100; CAD-$1200
Questions about this plan? Email us at boyeakin@aol.com.
