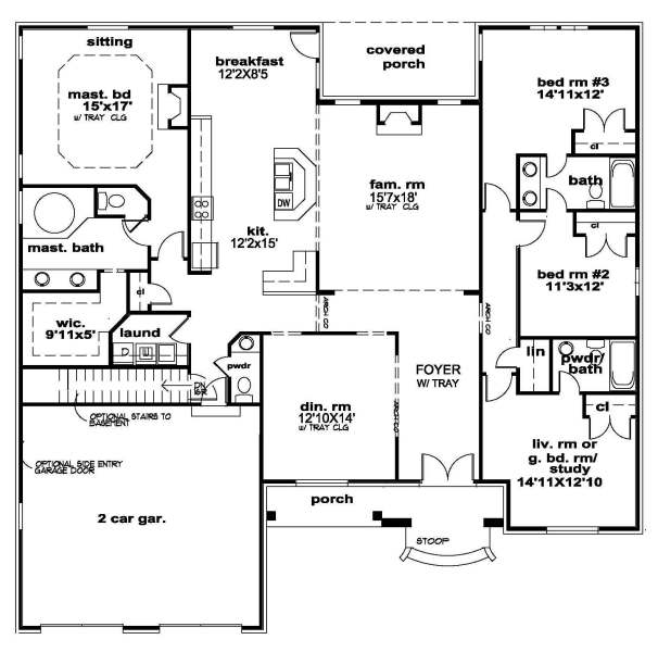
ALEXANDRA PLAN-DH 565-NEW FOR 2011
Bedrooms:4/Bath:3
Main Level: 2499 sf
Total Living Area:2499 sf
Width:60 feet/Depth: 62 feet
Planning Sets: $250, 5 Construction sets-$900; 8 Construction sets-$950;
PDF/REPRO-$950; CAD-$1100
Questions about this plan? Email us at boyeakin@aol.com.
ORDER PLANS BY CLICKING "ADD TO SHOPPING CART"
