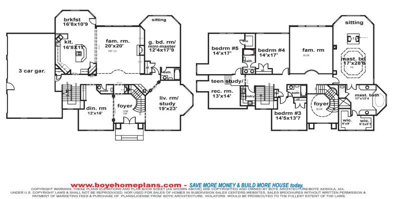
Bedrooms:6/Bath:4
Main Level:2194 sf/Upper Level:1934 sf
Total Living Area: 4128 sf
Width:66 feet/Depth: 69 feet
Planning Sets: $250, 5 Construction sets-$1200; 8 Construction sets-$1250;
PDF/REPRO-$1400; CAD-$1500
Questions about this plan? Email us at boyeakin@aol.com.
ORDER PLANS BY CLICKING "ADD TO SHOPPING CART"
