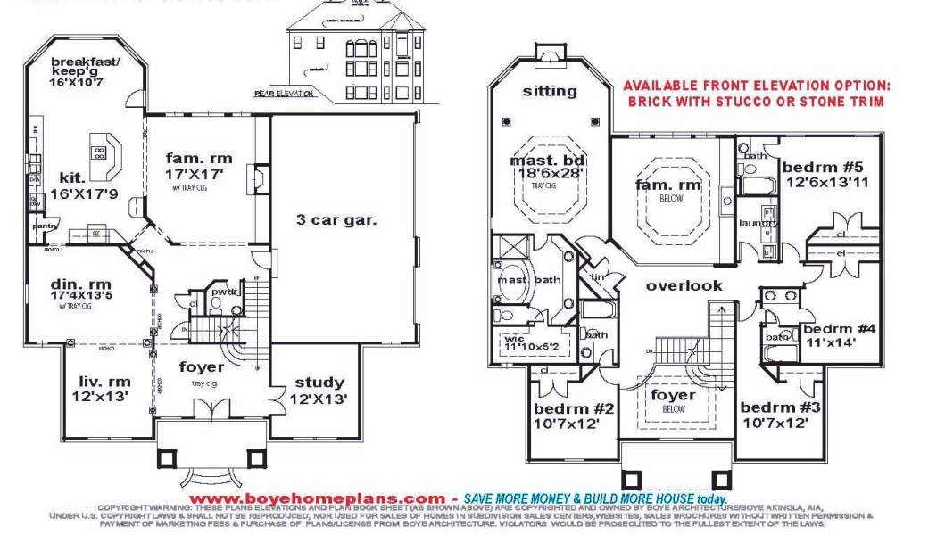
Bedrooms:5/Bath:4
Main Level:1803 sf/Upper Level:1874 sf
Total Living Area: 3677 sf
Width:55 feet/Depth: 58 feet
Planning Sets: $250, 5 Construction sets-$1000; 8 Construction sets-$1050;
PDF/REPRO-$1100;CAD-$1200
Questions about this plan? Email us at boyeakin@aol.com.
ORDER PLANS BY CLICKING "ADD TO SHOPPING CART"
