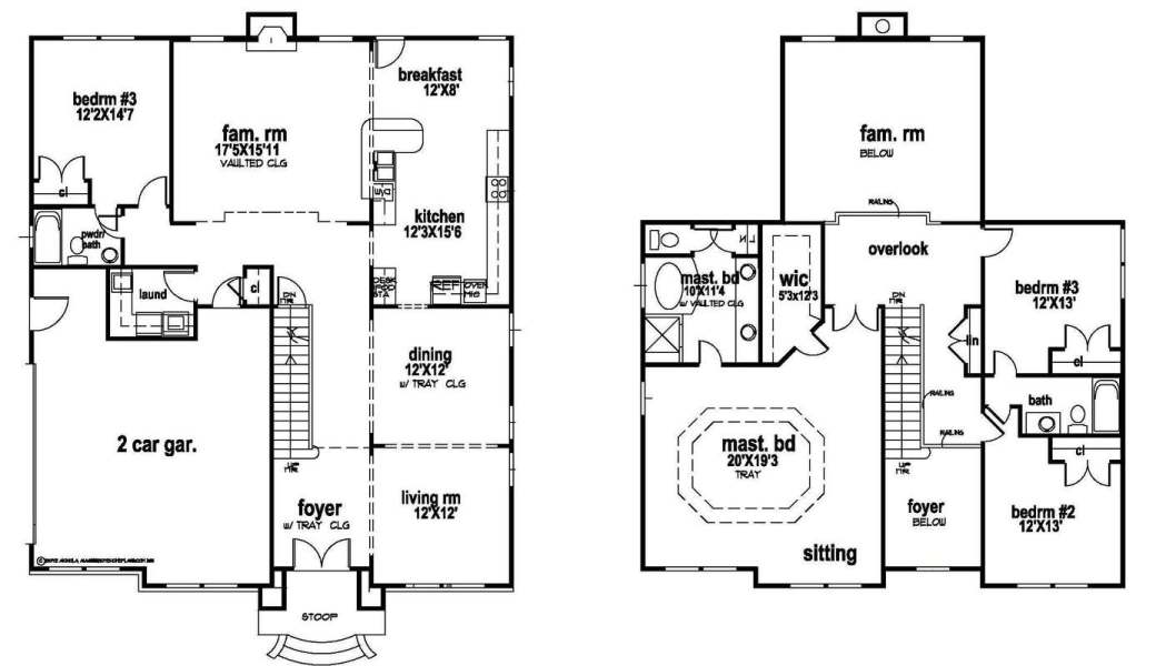
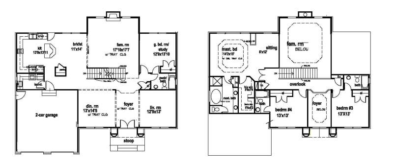
Bedrooms:4/Bath:3.5
Main Level:1096 sf/Upper Level:1185 sf
Total Living Area: 2281 sf
Width:41 feet/Depth: 45 feet
Planning Set: $250, 5 Construction sets-$900; 8 Construction sets-$950;
PDF/REPRO-$950; CAD-$1100
Questions about this plan? Email us at boyeakin@aol.com.
ORDER PLANS BY CLICKING "ADD TO SHOPPING CART"
