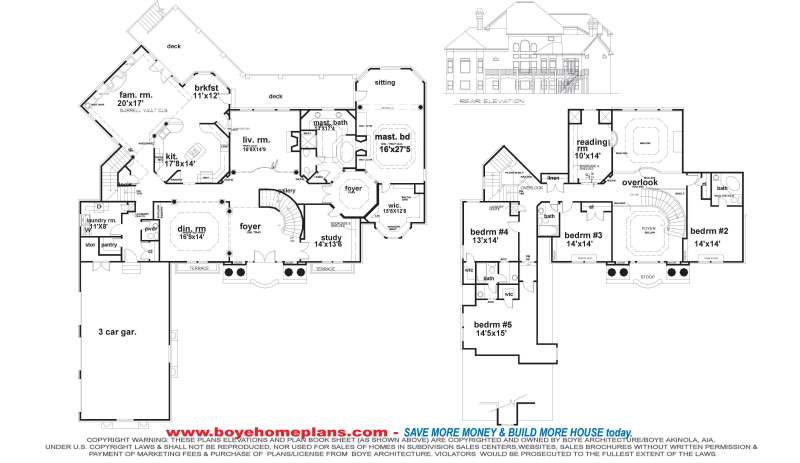
Bedrooms:5/Bath:5.5
Main Level:2734 sf/Upper Level:1646 sf
Total Living Area: 4380 sf
Width:68 feet/Depth: 79 feet
Planning Sets: $250, 5 Construction sets-$1200; 8 Construction sets-$1250;
PDF/REPRO-$1400; CAD-$1500
Questions about this plan? Email us at boyeakin@aol.com.
ORDER PLANS BY CLICKING "ADD TO SHOPPING CART"
